当前位置:

山东建哈四柱液压机图纸

来源: | 作者:佚名 | 发布时间 :2025-10-17 | 81 次浏览: | 🔊 点击朗读正文 ❚❚ | 分享到:
四柱液压机由于整体结构收到很多加工生产行业的青睐,加工件对设备的要求几乎都可以在四柱式结合,它是利用油泵输送液压油的静压力转化成机械动作,用来加工粉末、橡胶、金属、塑料等制品的机械设备。常用于压制工艺和压制成形工艺,薄板拉深、粉末冶金、冲压、锻压、冷挤、弯曲、校直、翻边、压装等等。框架式液压机是液压机的一种,对机器零部件进行拉伸、折弯、装配、拆卸、校直、压延、冲孔等工作,四柱结构对能根据加工件调整变化,例如:校正变形工件、拆装圆柱锥形轴承、压装各种紧配件。

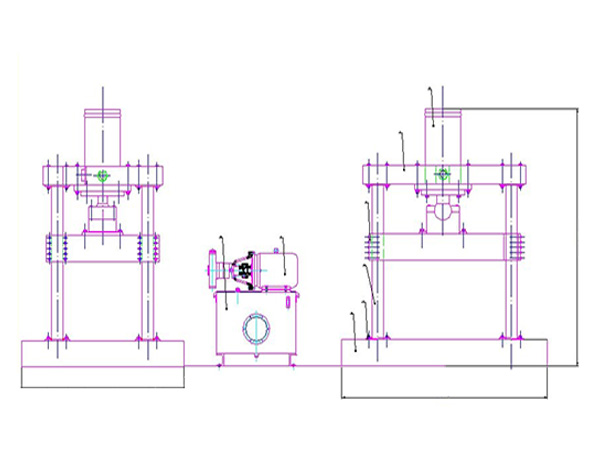
四柱液压机由于整体结构收到很多加工生产行业的青睐,加工件对设备的要求几乎都可以在四柱式结合,它是利用油泵输送液压油的静压力转化成机械动作,用来加工粉末、橡胶、金属、塑料等制品的机械设备。常用于压制工艺和压制成形工艺,薄板拉深、粉末冶金、冲压、锻压、冷挤、弯曲、校直、翻边、压装等等。框架式液压机是液压机的一种,对机器零部件进行拉伸、折弯、装配、拆卸、校直、压延、冲孔等工作,四柱结构对能根据加工件调整变化,例如:校正变形工件、拆装圆柱锥形轴承、压装各种紧配件。传统液压机的工作过程是,先安装与待加工产品相应的模具,模具一般质量大,需要螺栓固定;然后将原材料放在模具上,通过液压机冲压成型取下工件。每个液压机厂家都有自己的产品图纸,今天山东建哈宝发重工的小编给大家展示一下CAD设计图纸:

山东建哈四柱液压机图纸

一般四柱液压机安装一次模具只能加工一种产品,加工多种产品需要多次更换模具,或者配备多台液压机,而四柱液压机一般体积庞大,价格高昂,配备多台液压机不仅占据很大的空间而且需要很大的成本投入,对一般经济实力的生产厂家而言显然不现实,所以只能在加工完一种产品后,立即更换模具加工另外一种产品,这样虽然节省了成本,却将宝贵的生产时间浪费在了反复拆装模具上,成为进一步提高生产线上的生产速度,提高产品生产效率的最大制约因素。产品拼接式膜具可以根据加工件结构倒模,结构平铺设计成一体式膜具能减少拼装空挡的时间。山东建哈专注研发液压机十八年,把多年积累的经验给您客户参考,在懂您产品的同时设计出好的设备,满足您的需求欢迎有意者前来咨询参考。


推荐产品
  • 315吨双缸液压机

    315吨双缸液压机

    三梁四柱液压机

    0.00

    0.00

  • 500吨加缓冲缸四柱液压机

    500吨加缓冲缸四柱液压机

    三梁四柱液压机

    0.00

    0.00

  • 500T节能型刹车片专用液压机

    500T节能型刹车片专用液压机

    刹车片液压机

    0.00

    0.00

  • 630T三梁四柱四柱液压机

    630T三梁四柱四柱液压机

    三梁四柱液压机

    0.00

    0.00

相关内容